Model homes are open! For the best experience, book an appointment. Contact Us

Wasilla, AK

Stone Creek

7651 E. Obsidian Loop, Wasilla, AK 99654

Lincoln

 Ranch Home with covered porch & 3 car garage!  
3 Beds
2 Baths
3 Garage
1,280 SqFt
$440,000
Lot:
Status: Under Construction

    Request Info

    Please enter the text
    captcha

    About This

    Home

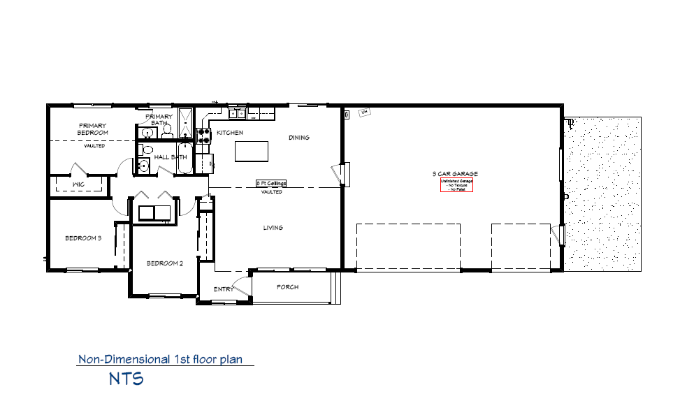
    This Lincoln plan sits on a shy acre in the beautiful Stone Creek community and offers an exceptional blend of quality, comfort, and value. The home features three bedrooms, two baths, and a spacious three car garage, all designed with thoughtful upgrades throughout. Expanded living room, kitchen, and dining room spaces create an open and inviting layout that works perfectly for everyday living.

    A paved driveway and paved RV pad add convenience, while the Five Star Plus energy rating makes the home eligible for the ten thousand dollar AHFC energy rebate. Inside, you will enjoy triple pane windows, upgraded flooring, enhanced cabinetry, a tile backsplash, and a large six foot bench at the entry. The primary suite includes a five foot tile shower with glass doors and quality finishes.

    This is an affordable opportunity for buyers seeking well built new construction in a premier Alaska subdivision. Photos are similar only and may not represent the final product, views, or other aspects of the property.

    Additional

    Homes

    Under Construction
    Ranch Home on large lot with 3 car garage and RV pad!

    Wallawa

    $449,000

    Beds: 3   |   Baths: 2   |   SQFT: 1,416

    7545 E Obsidian Loop, Wasilla, AK 99654

    View Home
    Under Construction
    Spacious and Open! 3 Car Garage! Amazing Lot and Location!

    Concord

    $450,000

    Beds: 3   |   Baths: 2   |   SQFT: 1,286

    TBD E Star Garnet Cir , Wasilla, AK 99654

    View Home
    Under Construction
    Office and 3 Car Garage - Large Lot!

    Deshka

    $465,000

    Beds: 3   |   Baths: 2   |   SQFT: 1,444

    TBD Star Garnet Cir, Wasilla, AK 99654

    View Home
    Have Questions?

    Request Information

      Please enter the text
      captcha

      Stay Connected

        Please enter the text
        captcha

        Get in Touch:   Call   Text