Model homes are open! For the best experience, book an appointment. Contact Us

Palmer, AK

Alpine View

Deshka

 
3 Beds
2 Baths
Half Baths
2 Garage
1,444 SqFt
$329,000

    Request Info

    Please enter the text
    captcha

    About This

    Home

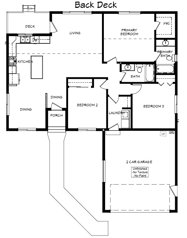
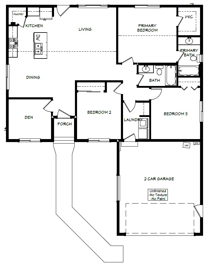
    Starting at $317,000. Several Floorplan Options Available! This delightful ranch offers 1400+ square feet of living space. It has 3 bedrooms, 2 full baths, laundry room, ample closet space, and open concept kitchen, dining, and living rooms. The Deshka boasts a covered back porch option, den option, and vaulted ceilings in the master bedroom, dining and living room areas. Included Features Subject to change. Prices do not include lot allowance.

    Also available at:

    Available

    Homes

    Under Construction
    3 Bedroom with Covered Deck & 3 Car Garage on Amazing Corner Lot in Alpine View!

    Deshka

    $470,000

    Beds: 3   |   Baths: 2   |   SQFT: 1,511

    8898 E Honey Bear Cir, Palmer, AK 99645

    View Home
    Under Construction
    Ranch with 3 Bedrooms + Office! $10,000 Rebate Available!

    Deshka

    $487,500

    Beds: 3   |   Baths: 2   |   SQFT: 1,566

    5348 N Jellystone Cir , Wasilla, AK 99654

    View Home
    Sale Pending
    Views! Views! Views! Incredible Ranch Home on Large Lot! $10,000 Rebate Available!

    Deshka

    $530,000

    Beds: 3   |   Baths: 2   |   SQFT: 1,652

    8542 E Eagle View Cir, Palmer, AK 99645

    View Home
    Under Construction
    Office and 3 Car Garage - Large Lot!

    Deshka

    $465,000

    Beds: 3   |   Baths: 2   |   SQFT: 1,444

    TBD Star Garnet Cir, Wasilla, AK 99654

    View Home
    Deshka
    Quick Move In
    Ranch with 3 Bedrooms + Office!

    Deshka

    $499,500

    Beds: 3   |   Baths: 2   |   SQFT: 1,566

    14359 W Peak Circle, Big Lake, AK 99623

    View Home

    Prices shown are base prices for each floor plan and are subject to change without notice. Prices do not include the cost of the lot or additional construction expenses.

    Have Questions?

    Request Information

      Please enter the text
      captcha

      Stay Connected

        Please enter the text
        captcha

        Get in Touch:   Call   Text