Model homes are open! For the best experience, book an appointment. Contact Us

,

Clearwater

 
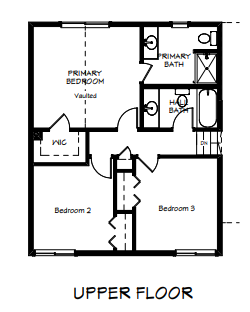
3 Beds
2 Baths
1 Half Baths
2 Garage
1,575 SqFt
$358,500

    Request Info

    Please enter the text
    captcha

    About This

    Home

    The Clearwater by Hall Quality Homes is Your Perfect Tri-Level Home! Conveniently located near schools and commuter routes, this stunning new home is designed for modern living. Enjoy added space with a generous 2′ extension to the living and dining areas, perfect for entertaining. The impressive 7′ wide kitchen island and stylish painted cabinets make cooking a delight. Step outside to a charming 10’x10′ fir deck with stairs, ideal for summer gatherings. With a paved RV pad and a wide driveway for all your vehicles, convenience is at your fingertips. Experience comfort with upgraded carpet padding and a well-appointed half bath vanity. This home combines style, functionality, and location—don’t miss your chance to make it yours! Photos are similar only. Prices do not include lot allowance.

    Available

    Homes

    Under Construction
    Affordable Square Footage! $10,000 Rebate Available! Move In by Spring!

    Clearwater

    $475,000

    Beds: 3   |   Baths: 2   |   Half Baths: 1   |   SQFT: 1,660

    7755 E Obsidian Loop, Wasilla, AK 99654

    View Home

    Prices shown are base prices for each floor plan and are subject to change without notice. Prices do not include the cost of the lot or additional construction expenses.

    Have Questions?

    Request Information

      Please enter the text
      captcha

      Stay Connected

        Please enter the text
        captcha

        Get in Touch:   Call   Text